Ronnenberg
Die Seniorenresidenz “Haus am Hirtenbach” wurde in Ronnenberg am Rande von Hannover errichtet.
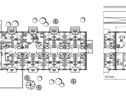
Es bietet nach seiner Erweiterung insgesamt 92 Pflegeplätze an. Diese verteilen sich auf 28 Einzel- und 32 Doppelzimmer.
Ein großer barrierefrei gestalteter Garten mit zwei Terrassen und einer großzügigen Rasenfläche steht den Bewohnern zur Verfügung.
Das Altenpflegeheim entstand 1993 zunächst als Neubau mit einer Gesamtnutzfläche von 2.346 qm und einem umbauten Raum von 8.522 cbm (Herstellungskosten 2,1 Mio. Euro). Aufgrund der hohen Nachfrage wurde 1999 das Gebäude nach hinten verlängert. Die neugewonnene Nutzfläche beträgt 809 qm, der umbaute Raum vergrößert sich um 4.018 cbm (Herstellungskosten 1 Mio. Euro).
Der ursprüngliche Baukörper sowie die Erweiterungsmaßnahmen wurden durch Architekturbüro Heinrich Depping durchgeführt.
Leistungsphasen: 1-9




